
Lamone
Lamone
Area
253 sqm
Property Type
office
Category
renting
Price
CHF 120
City
Lamone
Postal Code
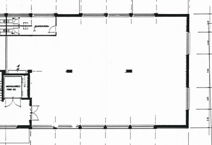
Superficie: ~ 250 m² — adatta a ufficio, magazzino, show-room, coworking o attività non moleste. Piano: primo piano di un edificio di 5 piani fuori terra. Configurazione attuale: due ampi open-space, con possibilità di adattare la pavimentazione secondo le esigenze del conduttore. Stato attuale: in fase di ristrutturazione — recentemente installata caldaia a nafta con nuovi radiatori. La pavimentazione sarà completata in base all’utilizzo definito dal nuovo conduttore. Localizzazione e accessibilità: posizione strategica a pochi minuti a piedi dalla stazione ferroviaria di Lamone — eccellente collegamento con mezzi pubblici. La facciata con affaccio su strada garantisce ottima visibilità e facilita l’accesso anche a clienti o visitatori. Contesto e servizi nelle vicinanze: zona artigianale/commerciale tranquilla e non molesta, ideale per attività professionali. Nelle immediate vicinanze è presente un locale di ristorazione — comodo per pause pranzo o incontri informali. Ideale per: studi professionali, uffici, showroom, magazzini, start-up, coworking o attività artigianali leggere che richiedano buon accesso, visibilità e flessibilità degli spazi. Alcuni dettagli chiave: - Portata soletta: 1'000 kg/mq - Altezza locali: 3.0 metri - Ascensore/ montacarichi al piano - Posti auto: Disponibili 2 esterni - Durata del contratto di locazione: base al tipo di attività del conduttore - Render illustrativi Viene data la possibilità di personalizzare la superficie in base alle richieste del conduttore. Per visite o informazioni si prega di contattare Niccolò Debernardis allo +41 79 814 45 44 oppure tramite mail niccolo@zenitrealestate.com
Real Estate Agent