
Mezzovico
6805 Mezzovico
Area
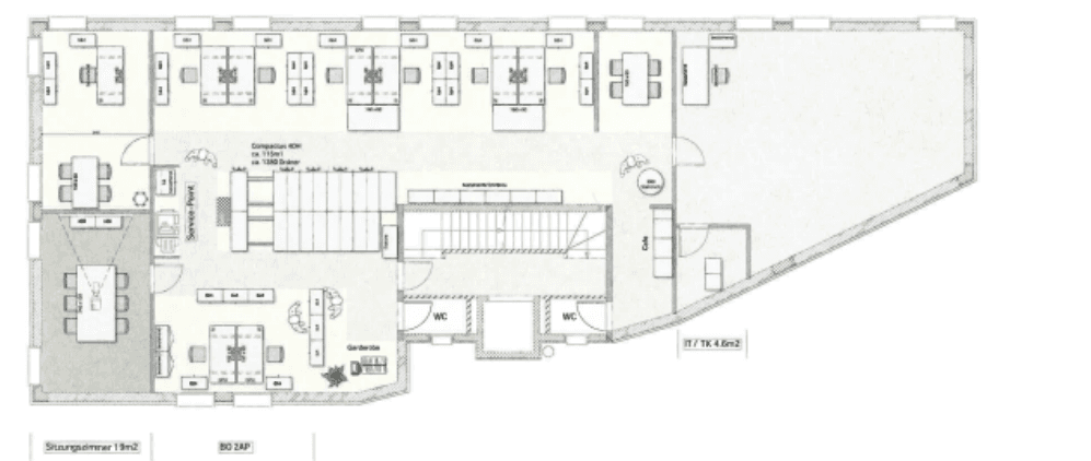
245 sqm
Property Type
office
Category
renting
Price
CHF 2’500
City
Mezzovico
Postal Code
6805
Disponibile in affitto un’ampia superficie di circa 245 m² su un unico piano, ideale per uso ufficio o attività amministrative. La zona si presta perfettamente per società, studi professionali o attività che necessitano di spazi modulari e flessibili. Mezzovico rappresenta una location ideale per chi cerca uffici, sedi operative o spazi direzionali di rappresentanza. Grazie alla sua posizione ben collegata e facilmente raggiungibile, è perfetto per attività che richiedono visibilità, accessibilità e comodità sia per clienti sia per collaboratori. Caratteristiche principali - Grande open space luminoso, ideale per postazioni di lavoro condivise o modulabili. - Cucina / angolo ristoro. - Uffici modulari separabili per creare ambienti indipendenti o sale riunioni - 2 servizi igienici. - Aria condizionata Ottima visibilità dalla strada, comoda accessibilità e 6 parcheggi, che rendono la location ideale anche per chi riceve clienti o visitatori. Per maggiori informazioni o visite sul posto contattare Niccolò Debernardis 079 814 45 44 oppure niccolo@zenitrealestate.com
Real Estate Agent